一分钟了解楼梯计算规则 楼梯工程量计算技巧 一,楼梯需要计算的工程
7715楼梯栏杆 1.室内 - 抖音
楼梯设计尺寸ppt
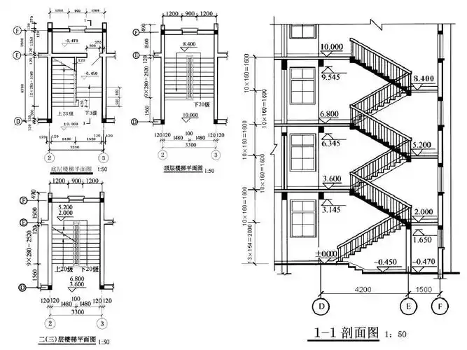
【设计图纸】全套多层住宅楼楼梯详图(精选cad图例)
楼梯标准平面图
楼梯的净长度计算方法
建筑图纸cad-lt3,lt4楼梯详图(商务公寓大楼)
请专业人士帮我画出楼梯图.一定要专业.平面图,立面图
楼梯设计例题ppt
教你读懂楼梯平面图!
楼梯如何绘制
包含楼梯剖面,楼梯4架空层平面图,楼梯4四层平面图等,图纸内容完整
歌手郭峰一生献给音乐没成家就满头白发60岁未婚成母亲心结
记录又被刷新 印度新冠死亡人数飙升至20万!一周内30万人检测呈阳性!
布达拉宫线描画(缩减画)适合二年级以上小朋友
唯美的女性背影图片
维克特利奥特曼简笔画怎么画
色相环图
普通女高中生素颜日常 最近天气太热了,分享平时上学不打扮也可以好看
又丑又搞笑的图片丑女 独一无二丑女图片_微信头像图片大全
惊悚悬疑剧《mouse》才两集就让观众想破头!连男主角李升基都有嫌疑
恐怖女孩momo引全球挑战热警方发警告
死后肉身未腐烂的九具尸体肉身不腐的著名尸体有哪些图
等你多时diy木雕