工行武汉汉阳支行运营主管刘婷本领过硬服务暖心
刘婷:十七载悉心培养"素质少年"_大武汉
美然水光针的热门相关问题都在这里武汉正璞医疗刘婷为大家一一解答
武汉美女时钟-刘婷
战疫日记 | 刘婷:我在武汉东西湖方舱医院抗疫的一天
武汉正璞 刘婷
我校召开小学教育专业教学资源库建设推进会
刘婷- 大众口腔_武汉口腔医院_专业开展种植牙_牙齿矫正_烤瓷牙_牙齿
回顾:江苏女孩老公负债150万,她努力赚钱年入百万,帮老公还债
元宇宙科研团队
刘婷老师为学院教师分享汇报"高校教师教学创新能力素养专题培训"成果
课堂电子屏幕有了"限时软件",武汉市教育局:建议全市各校学习
九潭鱼青的故事
海滩壁纸
尼康af-s nikkor 85mm f/1.8g
ue5二次元日式街道
女星们梨花带雨的哭戏,赵丽颖最委屈,孙俪最震撼,刘诗诗的最痛
漫有gif#|妻管严?真男主?三爷是真的帅爆了——三笠·阿克曼_网易订阅
【马嘉祺】在我心上用力的开一枪
麻辣烫店
向阳而生
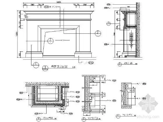
[图块/节点]壁炉详图
优雅女生头像黑白色霸气,喜你不及只做温柔人
21:29:37肖战 魏无羡 陈情令【魔道祖师】吆合子该采集也在以下画板