楼梯的平面图
二层楼梯平面图
loft阁楼楼梯二楼楼梯尺寸解析图木结构l型中部转角式设计参考
楼梯平面图
二层楼梯图纸对应的就是2层3层之间的楼梯吧
ta提问私信ta 展开全部 (台阶的高度之和h 全部楼梯台阶的长度和l)*
楼梯标准平面图
楼梯二层平面图
二层楼楼梯平面图
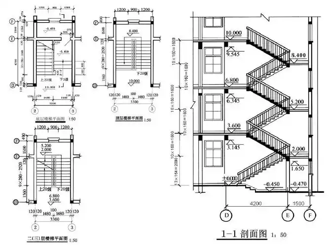
建筑图纸楼梯平面图这个楼梯上下指示标的对吗
分享二层楼梯绘制资料下载
网页背景平铺图片
2019六哲东莞演唱会行程安排及订票入口
棕色卡通动漫壁纸
阿尔法罗密欧周冠宇特别版于今日上市
李小璐pgone小视频是怎么流出的有人知道吗
收集 点赞 评论 忘羡 0 269 安静的温柔
草莓奶茶图片_全景网
有看起来很惊艳的锁屏壁纸很桌面壁纸吗求分享很干净舒服的那种
从故宫的营造原则来看其空间布局
越看越帅的新奥迪a7
#刘诗诗0310生日快乐#
手写文字 摘录 古风 情感 短句 唯美 文字控 伤感 歌词 经典 文字句子