本工程为酒水吧台cad详图,包含酒水吧台平面图,酒水吧台立面图,酒水
大厅立面图
心雨转角咖啡厅-李欣的设计师家园-西餐厅
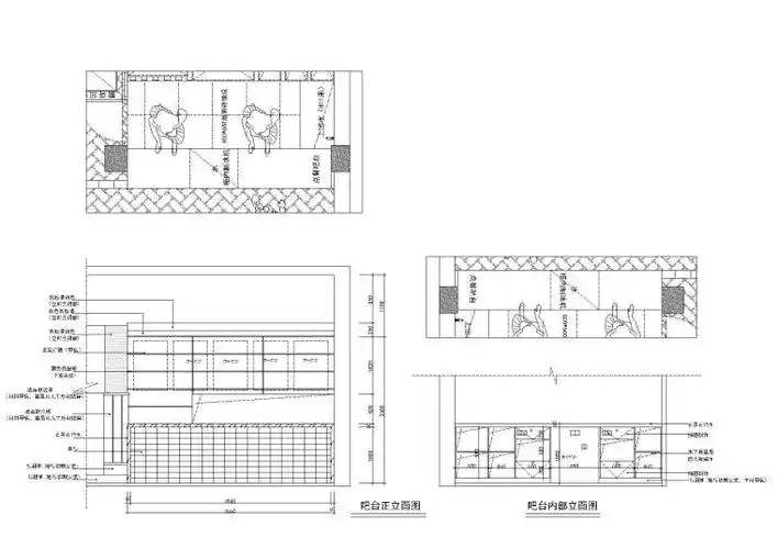
包含吧台正立面图,吧台剖面图,图纸内容完整,表达清晰,制图严谨,欢迎
卡座区立面图
收银台内立面图pdf
餐厅立面图
吧台立面图27
餐厅吧台立面装修效果图
红酒水吧台
韩式料理店吧台a立面施工图
咖啡厅立面图
国家京剧院智取威虎山
9款 斜顶阁楼装修效果图欣赏
放羊的星星刘荷娜
博君一肖bjyx/肖战/王一博/陈情令 - 堆糖,美图壁纸兴趣社区
好莱坞十大最漂亮女明星排行-最美的好莱坞女星排名-好莱坞最美的女星
猪王若风小戚纪向宁
s-495黑金沙
梁洁海边唯美风大片,一身粉裙也太温柔,甜美梦幻!_高清图集_新浪网
节约粮食绘画 #节约粮食手抄报 #手抄报 #节约粮食 #节约 主页有
彩色安全网 防护网 服装店挂衣装饰围栏拓展训练攀爬绳网 政.
六一儿童节消防员蜀黍送你一朵小红花
qq双鱼座头像女生版 - 星座网