相关图片
随机推荐
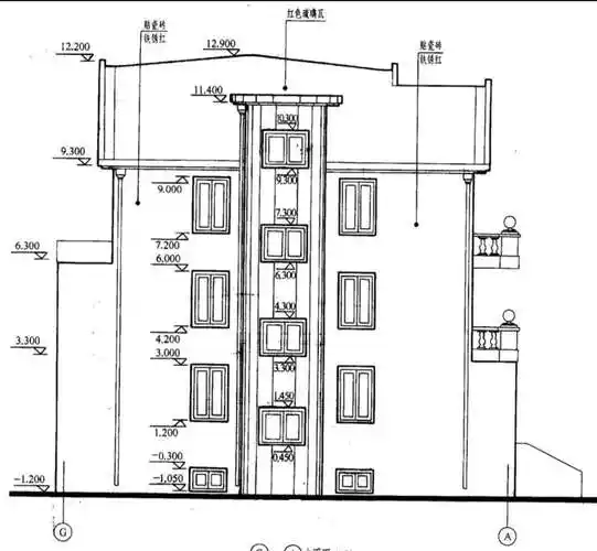
铝板吊顶系统标准图-幕墙结构节点详图-筑龙结构设计论坛
别再穿过时的连衣裙,今年流行的是蕾丝连衣裙 - 天猫精选
记录简单生活 还是家里的饭菜爽口#只有照片能记录这份珍贵 - 兑音
《海贼王》和之国大战规模真能超越顶上战争吗?
周星驰头像特辑永远的星爷
男朋友 #恋爱 #路灯下拍照 #路灯下的情侣 #影子拍照
郎酒 美福经典皮盒单支52度600ml礼品装【图片 价格 品牌 评论】-京东
棒针编织2岁女童裙式小背心,附编织说明
提升运气的微信背景图来啦92
网情深 鞋帽手套14然后挑边织第二排的方块花样,织法同排,只是
"一个没有军队的国家":色彩斑斓之哥斯达黎加 - 世界华人网
满脸写着不信图片_满脸写着不信动态图_满脸写着不信表情包gif动图