功能上可分为四大板块:管理区,后勤区,生活区和对外服务的社工中心
新天美地苑业委会关于筹建金峰社区美地苑老年活动中心的倡议书
这个小型养老机构为何成为嵌入式养老机构的经典
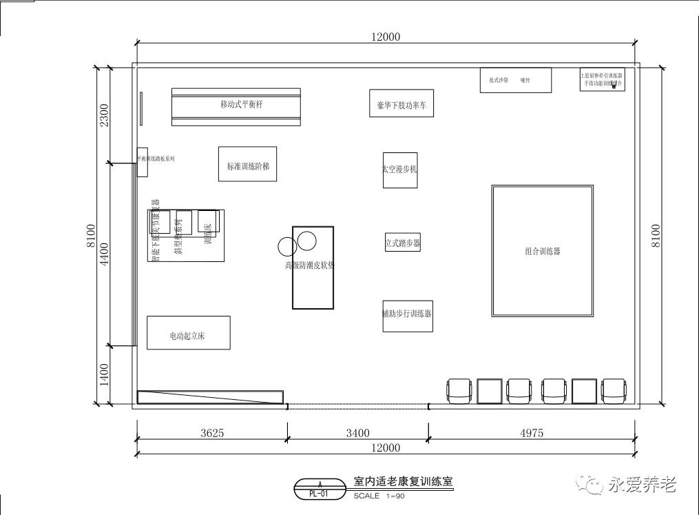
养老院cad图纸老年人活动中心敬老院老年公寓设计平面图施工图纸
老年活动中心2,让老年人的生活更加丰富多彩.
北京泰颐春养老中心
[北京]现代时尚风格商务酒店公寓老年活动中心装修图(含效果)
学党史办实事马岭大社区老年人日间照料中心正式运营
金山养老院平面设计
图10 某老年公寓文化娱乐,社交休闲空间平面⑥ 信仰服务功能我国相当
老年人活动中心完整施工图
活动室平面图
挂历女神瞿颖:一生中错付3个男人,49岁过成了这样!
斗罗大陆137集唐三回到史莱克奥斯卡吃醋柳二龙想杀比比东
女生头像jk制服
【郭德纲】 10.【张云雷】
纯色企业文化背景海报
欧仿品复刻德国二战领章 肩章 权饰 螺母扣电影道具1套
佳艺幼儿园大班"疫动不动,孜孜不倦"线上活动:艺术绘画— 我们的"绿色
公共场所请佩戴口罩防疫提示海报psd素材
心事谁人知 (闽南语方言歌曲) 黄乙玲 歌谱简谱网
个性阴郁的纯黑色头像
肩关节屈曲的作用;同时肱二头肌的止点有很大一块韧带与前臂筋膜连接
努力坚强手写毛笔字图片