丰收节,果实累累,福气满满
丰收的果实
丰收果实
果树上挂满了金灿灿的果实,沉甸甸压弯了枝头,放眼望去,一片丰收的
秋天果实 桃园中丰收的是果实,欠下的是妻子一生情
家乡的秋天我喜欢,有收获的季节,有丰收的果实.
秋季果实大丰收高清电脑桌面主题壁纸图片下载(4)
丹东市大梨树村丰收果实(央广网发 刘海东 王立军摄)
国庆节有味道丰收宁夏沉甸甸的果实向祖国献礼
67新品预定~ daiki工业 大气工业 百濑胡桃 向日葵少
原神- 堆糖,美图壁纸兴趣社区
小栗脊表情 - 斗图表情包 - 斗图神器 - adoutu.com
可以凭脸吃饭却偏要靠才华!郑钧年轻时颜值太帅,阿娇路透图好美
蓝色小清新风景高清壁纸
"山鸡"是赵山河的外号,他与陈浩南从小就是玩伴,与包达明和包达二,梁
电影
国六解放气瓶运输车 7吨氧气瓶运输车 液化气钢瓶运输车
克里米亚塞瓦斯托波尔地下污水隧道.被淹下水道插画
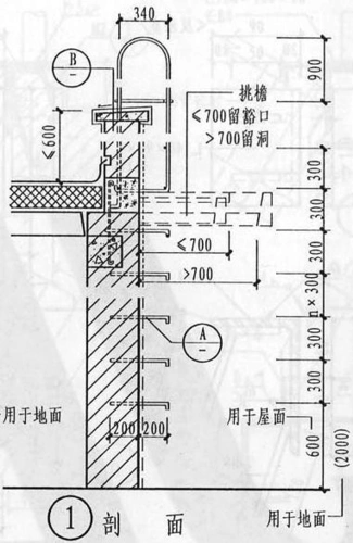
屋面机房上人爬梯上部Φ20筋制作安装选用图集:05yj8 -/98
矮脚长耳猎犬_全景网
马里奥惊奇最惊艳的场景之一,老任太懂游戏了